Пн-пт с 09:00 до 21:00, Сб-вс с 11:00 до 18:00

Продажа дом 230 м² на участке 7.6 сот. ID: J102

Уфа, Базилевская, д.10, к.А

Комнаты 3
Площадь 230 м²
Этажи 2
Сдача 2014
 14 000 000  
13 700 000
59 565 /м²
Рассчитать ипотеку
Наумов Роман

Наумов Роман

+7(963)900-8527

Krajd86@gmail.com
QR
Ссылка на объект

Описание

Продается большой просторный дом в экологически чистом пригороде по адресу : г. Уфа, Калининский район, ул.Базилевская, 10А

Общая площадь: 230 кв м
Участок: 7,6 соток

Дом построен из качественных материалов:
* фундамент ленточный на сваях 3,5 м с частотой 1,5 м
* материал стен- кирпич Porikam. Ширина стен 70 см
* фасад - облицовка короед + натуральный камень.
* придомовая территория выложена брусчаткой на основании армированного бетона толщиной 200 мм
* Теплый пол по всему периметру дома
* натяжной потолок
* скважина 16 м
* шамбо 2 шт, отдельно для санузла и отдельно для кухни
Толщина стен обеспечивает прекрасную теплоизоляцию- в доме зимой тепло, в жаркую погоду- приятная прохлада. Высокий потолки и большое количество окон создают неповторимое ощущение масштаба и пространства.
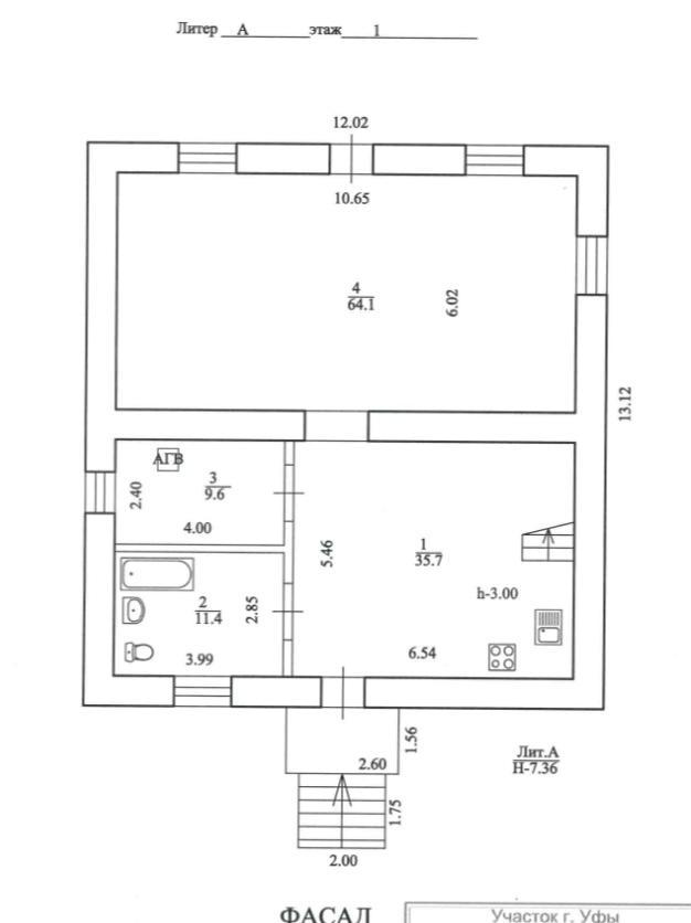
1 этаж: - кухня-гостиная- 35,7 кв м
- комната - 64,1 кв м
- ванная комната- 11,4 кв м
- бойлерная- 9,6 кв м


2 этаж: -мансардная спальня- 64 кв м
- холл- 45,2 кв м
Водоснабжение центральное, отопление АГВ, газ в доме.

Имеется новая БАНЯ, так же построенная из кирпича Porikam. Тропинка к бане вымощена брусчаткой. На участке посажены сосны и ели.
Дом огорожен забором высотой 3 м, что обеспечивает безопасность, тишину, уединение и приватность.
Улица, на которой построен дом- небольшая, машины не ездят, не шумят. Тихо и спокойно.
Соседи – семейные пары.
Есть необходимые продуктовые магазины, в шаговой доступности чистый водоем для купания, ягодные поля и лесопосадки- излюбленное место ценителей загородной жизни недалеко от мегаполиса

Один взрослый собственник. Без долгов, без обременений, без РОНО, без маткапа.
Быстрый выход на сделку. Ключи в день сделки.
Подробнее

Характеристики

  • Тип недвижимости Дома, дачи
  • Населенный пункт Уфа
  • Адрес Базилевская, д.10, к.А
  • Тип объекта дом
  • Тип дома кирпичный
  • Общая площадь 230 м²
  • Площадь участка 7.6 сот.
  • Количество этажей 2
  • Подвальное помещение нет
  • Год постройки 2014
  • Материал стен Кирпич
  • Тип участка ИЖС
  • Санузел в доме
  • Душ В доме
  • Удобства Санузел, водоснабжение, теплый пол
  • Количество комнат 3

Задать вопрос



Вас также может заинтересовать:

30
коттедж 136 м² на участке 11 сот.
Уфа, улица Авиастроителей, д.5
Ленинский
16 200 000
  • Тип дома:кирпичный
  • Количество этажей:2
  • Год постройки:2012
  • Материал стен:Кирпич
13
дом 130 м² на участке 6 сот.
Уфа, переулок Болдинский

11 000 000
  • Тип дома:блочный
  • Количество этажей:1
  • Год постройки:2025
  • Материал стен:Газоблоки
31
дом 152.1 м² на участке 6 сот.
Уфа, улица Янтарная, д.114н

13 990 000
  • Тип дома:кирпично-монолитный
  • Количество этажей:2
  • Год постройки:2022
  • Материал стен:Кирпич

Мы используем файлы cookie, чтобы обеспечить вам наилучший доступ к нашему веб-сайту

Скопировано