Пн-пт с 09:00 до 21:00, Сб-вс с 11:00 до 18:00

Продажа дом 75 м² на участке 8 сот. ID: J123

село Горново, Респ Башкортостан, Уфимский р-н, село Горново, ул Центральная

Комнаты 4
Площадь 75 м²
Этажи 2
Сдача 2024
5 499 000
73 320 /м²
Рассчитать ипотеку
Хайруллина Насима

Хайруллина Насима

+7(917)454-3481

nasimakhajrullina@gmail.com
QR
Ссылка на объект

Описание

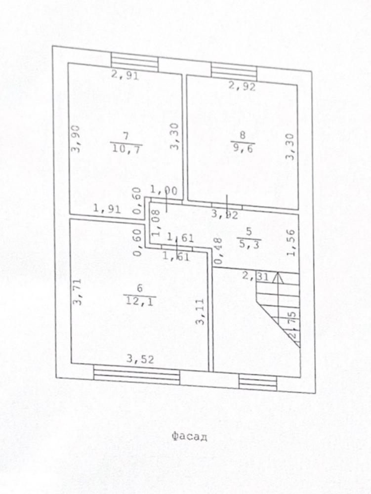
Предлагается просторный и светлый загородный дом — идеальное место для отдыха и комфортного проживания круглый год в 15 км от города Уфы! Новый кирпичный дом находится в центре села, имеет хорошую планировку: на первом этаже санузел, просторная кухня-гостиная, на втором этаже - три изолированные спальни. В дом заведены все коммуникации: вода центральная, электричество, канализация - шамбо. Вдоль забора проходит газ. Участок правильной прямоугольной формы 8 соток.

Характеристики

  • Тип недвижимости Дома, дачи
  • Район Уфимский район
  • Населенный пункт село Горново
  • Адрес улица Центральная
  • Тип объекта дом
  • Тип дома кирпичный
  • Общая площадь 75 м²
  • Площадь участка 8 сот.
  • Количество этажей 2
  • Подвальное помещение нет
  • Год постройки 2024
  • Материал стен Кирпич
  • Тип участка ИЖС
  • Санузел в доме
  • Душ В доме
  • Количество комнат 4

Задать вопрос



Вас также может заинтересовать:

14
дом 80 м² на участке 6 сот.
село Горново, улица Шоссейная

4 700 000
  • Тип дома:кирпичный
  • Количество этажей:2
  • Год постройки:2022
  • Материал стен:Кирпич

Мы используем файлы cookie, чтобы обеспечить вам наилучший доступ к нашему веб-сайту

Скопировано