Пн-пт с 09:00 до 21:00, Сб-вс с 11:00 до 18:00

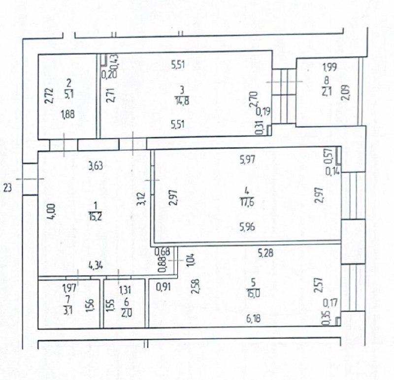
Продажа 3-к.квартира, 72.8 м², 3/10 эт. ID: J55

Уфа, Советский, улица Пархоменко, д.71/1

Комнаты 3
Площадь 72.8 м²
Кухня 15 м²
Этаж 3 из 10
Сдача 2024 г.
Материал кирпичный
8 999 000
123 612 /м²
Рассчитать ипотеку
Хайруллина Насима

Хайруллина Насима

+7(917)454-3481

nasimakhajrullina@gmail.com
QR
Ссылка на объект

Описание

Продается отличная новая квартира на 3 этаже в кирпичном доме в центре города по улице Пархоменко 71/1. В квартире очень просторная прихожая, раздельные санузлы, большая гардеробная. Большая кухня-гостиная с выходом на лоджию.
В квартире стены отштукатурены по маячкам, полы залиты, разводка электричества сделана. Стены толстые, слышимость между квартирами и комнатами практически нулевая.
Очень выгодная локация дома - центр. В шаговой доступности вся инфраструктура.
Квартиру можно купить за наличный расчет, сертификаты и в ипотеку ( помогу одобрить на выгодных условиях) Звоните и записывайтесь на просмотр!
1 взрослый собственник, без долгов, обременений, полная сумма в договоре!!!

Характеристики

  • Тип недвижимости Квартиры
  • Населенный пункт Уфа
  • Район Советский
  • Адрес улица Пархоменко, д.71/1
  • Количество комнат 3
  • Год постройки дома 2024 г.
  • Общая площадь 72.8 м²
  • Площадь кухни 15 м²
  • Этаж 3
  • Этажей в доме 10
  • Тип санузла Раздельный
  • Тип балкона лоджия
  • Наличие телефона да
  • Тип дома кирпичный

Задать вопрос



Вас также может заинтересовать:

18
2-к.квартира, 62.2 м², 2/12 эт.
Уфа, улица Владивостокская, д.10
Советский
9 000 000
  • Общая площадь:62.2 м²
  • Площадь кухни:12.85 м²
  • Этаж:2
  • Тип санузла:2
26
3-к.квартира, 82.1 м², 4/14 эт.
Уфа, улица Степана Кувыкина, д.45

10 200 000
  • Общая площадь:82.1 м²
  • Площадь кухни:10 м²
  • Этаж:4
  • Тип санузла:Раздельный
20
3-к.квартира, 79.1 м², 2/15 эт.
Уфа, улица Менделеева, д.122
Кировский
6 900 000
  • Общая площадь:79.1 м²
  • Площадь кухни:12 м²
  • Этаж:2
  • Тип санузла:Раздельный

Мы используем файлы cookie, чтобы обеспечить вам наилучший доступ к нашему веб-сайту

Скопировано