Пн-пт с 09:00 до 21:00, Сб-вс с 11:00 до 18:00

Продажа дом 158 м² на участке 8 сот. ID: J139

Грибовка (Уфимский р-н), улица Уфимская, д.3

Комнаты 3
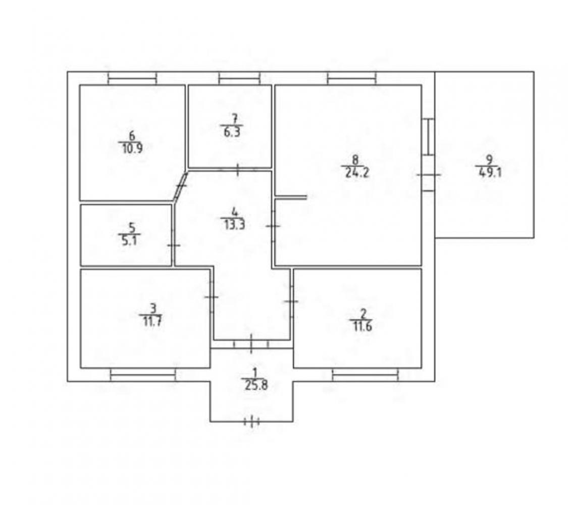
Площадь 158 м²
Этажи 1
6 900 000
43 670 /м²
Рассчитать ипотеку
Кутуев Альфред

Кутуев Альфред

+7(996)579-0025

kutuev_alfred@mail.ru
QR
Ссылка на объект

Описание

🏡 *Идеальный дом за городом – ваш уютный оазис!* 🌳

Представьте: свежий воздух, просторный участок и современный дом, где комфорт на первом месте. Этот красавец – 158 м² с террасой – готов стать вашим семейным гнездом!

*Что внутри?*
- *3 просторные комнаты* + *кухня-студия* для семейных ужинов и посиделок.
- *Гардеробная* – чтобы все вещи были на своих местах.
- *Теплый пол везде* – забудьте о холодных зимах, тепло под ногами круглый год!
- *Терраса* для барбекю и вечерних чаепитий на свежем воздухе.
- *Потолки натяжные* – стильные, практичные, без хлопот.

*Материалы на высоте:*
- Стены из надежного *кирпича* снаружи – долговечно и тепло.
- Внутри – *керамзитоблок* для отличной тепло- и шумоизоляции.

*Отделка:* Предчистовая – все коммуникации готовы, можно сразу въезжать и доводить до идеала под себя. Или закажите чистовую – поможем организовать!

Цена с супер! 🔥 Не упустите шанс на свой дом мечты за городом Уфы. Звоните для просмотра. Ваш комфорт ждет! ❤️

Есть другие обьекты, по запросу
Подробнее

Характеристики

  • Тип недвижимости Дома, дачи
  • Населенный пункт Грибовка (Уфимский р-н)
  • Адрес улица Уфимская, д.3
  • Тип объекта дом
  • Тип дома кирпичный
  • Общая площадь 158 м²
  • Площадь участка 8 сот.
  • Количество этажей 1
  • Материал стен Кирпич
  • Тип участка ИЖС
  • Санузел в доме
  • Душ В доме
  • Количество комнат 3

Задать вопрос



Вас также может заинтересовать:

18
дом 165 м² на участке 8 сот.
Грибовка (Уфимский р-н), улица Ясная Поляна, д.3

6 500 000
  • Тип дома:блочный
  • Количество этажей:1
  • Материал стен:Газоблоки

Мы используем файлы cookie, чтобы обеспечить вам наилучший доступ к нашему веб-сайту

Скопировано