Пн-пт с 09:00 до 21:00, Сб-вс с 11:00 до 18:00

Продажа дом 165 м² на участке 8 сот. ID: J140

Грибовка (Уфимский р-н), улица Ясная Поляна, д.3

Комнаты 3
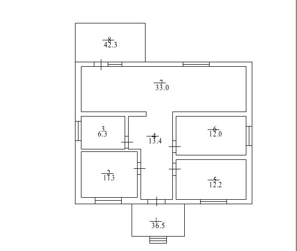
Площадь 165 м²
Этажи 1
6 500 000
39 393 /м²
Рассчитать ипотеку
Кутуев Альфред

Кутуев Альфред

+7(996)579-0025

kutuev_alfred@mail.ru
QR
Ссылка на объект

Описание

🏡 *Теплый и современный дом из газоблока за городом – ваш идеал!* 🌳

Представьте: свежий воздух Уфы за пределами города, просторный дом 165 м² с террасой для барбекю и отдыха. Построен из надежного газоблока толщиной 300 мм – тепло, тихо и экологично. Каркас добавляет прочности!

*Планировка для семьи:*
- 3 уютные комнаты для всех.
- Кухня-студия – сердце дома, где готовка и общение в одном флаконе.
- Терраса – для летних вечеров на природе.

*Комфорт на максимуме:*
- Теплый пол везде – ноги в тепле круглый год!
- Натяжные потолки – красиво и без хлопот.
- Отопление электрическое – просто и эффективно.

*Коммуникации готовы:*
- Вода из колодца – чистая и своя.
- Свет 380В – для всех нужд.
- Канализация – без проблем.

*Отделка:* Предчистовая – все подведено, стяжка и штукатурка на месте. Можем довести до чистовой под ваш дизайн – выбирайте материалы сами!

Супер-цена: 6 500 000 руб! 🔥 Не упустите шанс на дом мечты. Звоните для просмотра. Ждем вас! ❤️

Так же есть другие планировки , по запросу
Подробнее

Характеристики

  • Тип недвижимости Дома, дачи
  • Населенный пункт Грибовка (Уфимский р-н)
  • Адрес улица Ясная Поляна, д.3
  • Тип объекта дом
  • Тип дома блочный
  • Общая площадь 165 м²
  • Площадь участка 8 сот.
  • Количество этажей 1
  • Материал стен Газоблоки
  • Тип участка ИЖС
  • Санузел в доме
  • Душ В доме
  • Количество комнат 3

Задать вопрос



Вас также может заинтересовать:

23
дом 158 м² на участке 8 сот.
Грибовка (Уфимский р-н), улица Уфимская, д.3

6 900 000
  • Тип дома:кирпичный
  • Количество этажей:1
  • Материал стен:Кирпич

Мы используем файлы cookie, чтобы обеспечить вам наилучший доступ к нашему веб-сайту

Скопировано